Article code

EV-42920334

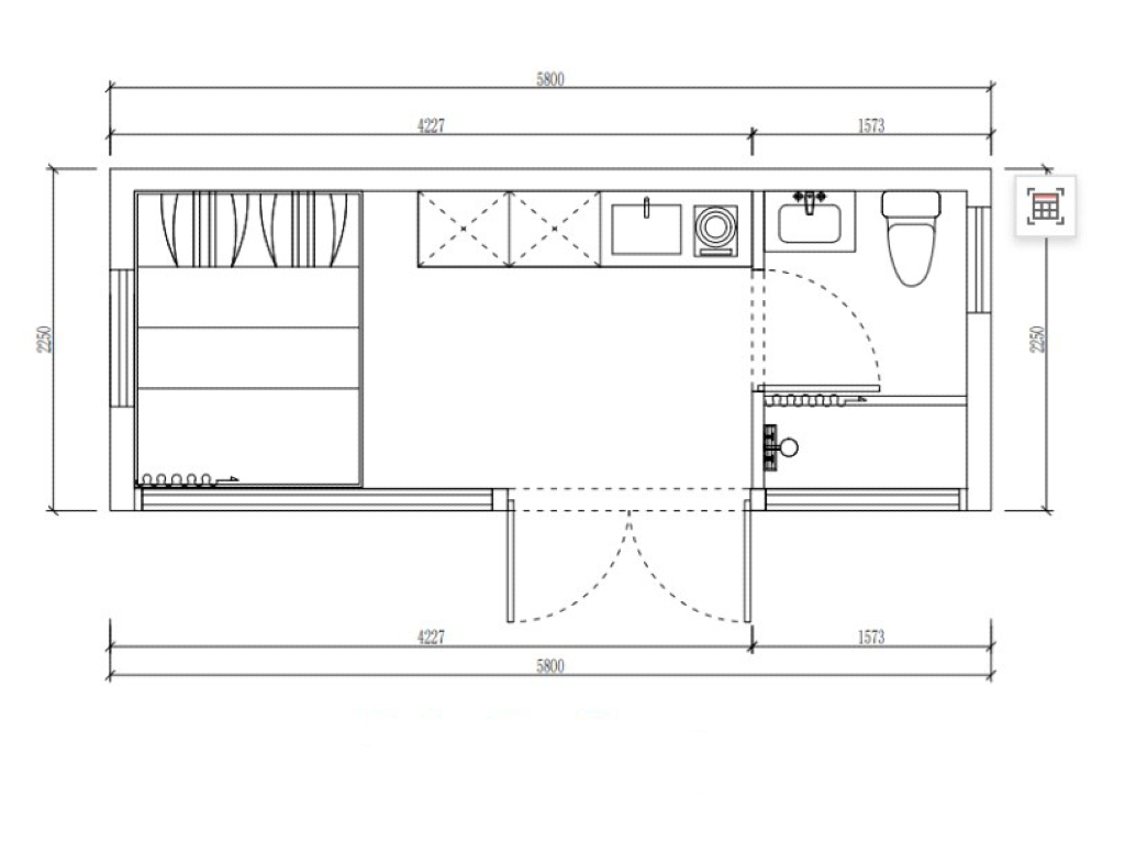
STELLAR 5,8 m

Size:

L 5800mm * W 2250mm * H 2450mm

Building area:

13.05 m2

Total power consumption:

Max 3 kw

Total net weight:

2 tones

Included options:

Air conditioner , Curtain , LED Light , 50L electric water heater (SAKURA)

Additional options

Select from the list below to add additional options to your order. The price will be calculated automatically based on the selected options.

  • + Kitchen (cabinet, hanging cabinet, sink, induction cooker, range hood)
  • + Solar Panels (price on request)

Cabin and Interior Design

  1. Main Frame: The basic structure for supporting the entire cabin.
  2. Shell: A durable construction designed to withstand wear and external conditions.
  3. Housing Surface Treatment (Electrostatic Spraying): A finishing process that ensures a protective coating against environmental factors.
  4. Thermal Insulation and Waterproof Layer: Advanced protection to maintain a comfortable temperature and prevent water infiltration.
  5. Glass Curtain Wall: A modern aesthetic design with glass facades that allow optimal natural lighting.
  6. Opening Window / Screen Window: A practical window that allows ventilation and protects against insects.
  7. Entrance Door: A solid door equipped with safety mechanisms.
  8. Entry Lock: A security mechanism for the protection of the cabin.
  9. Exterior Light Strip: Ambient lighting to illuminate the exterior of the cabin.
  10. Ceiling Lamp: Efficient lighting for the cabin's interior.
  11. Ceiling: An elegant and functional surface made from durable materials.
  12. Foot Support: Support elements for user comfort.
  13. Hanging Rings / Transportation Fixings / Connectors: Components required for assembling and transporting the cabin.
  14. Wall: A robust structure for partitioning and stability of the cabin.
  15. Floor: A durable and comfortable design for the cabin's flooring.
  16. Air Breaker: A system for controlling ventilation and air quality.


Water and Electricity

  1. Whole House Cables: A standardized installation for all electrical wiring within the cabin.
  2. Union Plastic Insulation PVC Line Pipe: Standard PVC piping for electrical line installations.
  3. Whole House Water Supply and Drainage Anti-Explosion and Anti-Pressure Piping: A reliable and safe water supply and drainage system.
  4. Five-Hole Socket / Three-Hole Socket: Standard power sockets for different types of devices.
  5. Switch Panel / USB Panel: Standard switch configurations and USB ports for convenient use.

Price

from 14500 €

Cabin and Interior Design

  1. Main Frame: The basic structure for supporting the entire cabin.
  2. Shell: A durable construction designed to withstand wear and external conditions.
  3. Housing Surface Treatment (Electrostatic Spraying): A finishing process that ensures a protective coating against environmental factors.
  4. Thermal Insulation and Waterproof Layer: Advanced protection to maintain a comfortable temperature and prevent water infiltration.
  5. Glass Curtain Wall: A modern aesthetic design with glass facades that allow optimal natural lighting.
  6. Opening Window / Screen Window: A practical window that allows ventilation and protects against insects.
  7. Entrance Door: A solid door equipped with safety mechanisms.
  8. Entry Lock: A security mechanism for the protection of the cabin.
  9. Exterior Light Strip: Ambient lighting to illuminate the exterior of the cabin.
  10. Ceiling Lamp: Efficient lighting for the cabin's interior.
  11. Ceiling: An elegant and functional surface made from durable materials.
  12. Foot Support: Support elements for user comfort.
  13. Hanging Rings / Transportation Fixings / Connectors: Components required for assembling and transporting the cabin.
  14. Wall: A robust structure for partitioning and stability of the cabin.
  15. Floor: A durable and comfortable design for the cabin's flooring.
  16. Air Breaker: A system for controlling ventilation and air quality.


Water and Electricity

  1. Whole House Cables: A standardized installation for all electrical wiring within the cabin.
  2. Union Plastic Insulation PVC Line Pipe: Standard PVC piping for electrical line installations.
  3. Whole House Water Supply and Drainage Anti-Explosion and Anti-Pressure Piping: A reliable and safe water supply and drainage system.
  4. Five-Hole Socket / Three-Hole Socket: Standard power sockets for different types of devices.
  5. Switch Panel / USB Panel: Standard switch configurations and USB ports for convenient use.

How it works (Step-by-step process)

How to order a CAPHAUS modular house

  1. Choose model and configuration
    Select the appropriate type of house and additional options on the website or in our showroom.
    📅 Want to see the house in person? — Book a visit
  2. Placing the order
    After approving the layout and configuration, a contract is signed.
    You receive a commercial offer and an invoice.
    💳 Payment terms:
    • Advance payment — 80% upon placing the order
    • Remaining 20% — upon delivery to the installation site
  3. Production and delivery
    Your house is custom-made to order.
    ⏱ Production and delivery time: 70 days
  4. Installation (optional service)
    Our specialists connect utilities (water, electricity, sewage) and prepare the foundation.
    The entire process is adapted to the specifics of the land.
    🧱 An experienced architect is involved from the beginning to the installation.
  5. Turnkey delivery
    You receive a fully move-in-ready house.
    Just move in and enjoy.